デザイナーズゲストハウス【COTON】
観音寺市豊浜町の人気ゲストハウス「COTON」の販売です!
インダストリアルなインテリアにラグジュアリー感プラスした個性溢れる空間。
オーシャンビューのテラスはBBQスペースとしても◎
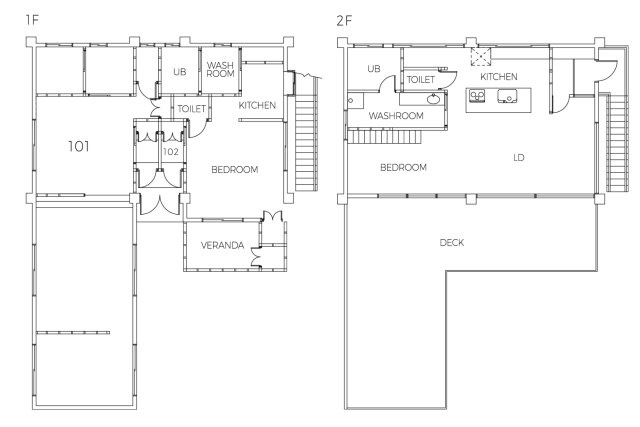
ゲストハウスとしての運用はもちろん、2階はロフト付きのワンフロアで住宅、1階(2部屋)を賃貸としての運用も可能です。
運営に関しては、管理委託も可能ですので、お気軽にご相談ください。
基本情報
- 価格
- 9,800万円
- 所在地
- 香川県観音寺市豊浜町箕浦甲2494-4
- 交通
- 予讃線「箕浦」駅 徒歩22分
- 築年数
- 1968年4月(築57年10ヶ月)
- 階数
- 2階
- 駐車場
- 有り 2台
- 現況
- 上物有
- 建物構造
- 鉄筋コンクリート
- 引渡
- 相談
- 取引態様
- 仲介
- リフォーム
履歴 - リノベーション
履歴
土地情報
- 土地面積
- 220.37m²
- 建物面積
- 167.78m²
- 私道負担面積
- 0.00m²
- 間取り
- 3LDK
- 建ペイ率
- %
- 容積率
- %
- 接道状況
- 方向:北西 種別:公道
- 土地権利
- 所有権
- 都市計画
- 都市計画区域外
- 用途地域
- 地目
- 宅地
- 地勢
- 平坦
- セットバック
- 無
設備
- ライフライン
- 水道:公営 排水:浄化槽 ガス:プロパン 電気:有
- 設備
- バルコニー / ルーフバルコニー / ワイドバルコニー / ウッドデッキ / ベランダ / テラス / フローリング / 全居室フローリング / 二重サッシ / 勾配天井 / シーリングファン / ロフト / 玄関ポーチ / エアコン / 照明器具付き / 冷蔵庫 / 家具・家電付 / 天井が高い / デザイナーズ / 2階リビング / 2階LDK / LDK2ヶ所 / リビング吹抜け / 駐車2台可 / 平面駐車場 / 自走式駐車場 / 独立型キッチン / オープンキッチン / アイランドキッチン / 3口以上コンロ / IHクッキングヒーター / キッチン2ヶ所 / 備付食器棚 / 食器洗乾燥機 / 浄水器 / 給湯 / カウンターキッチン / パントリー / バス・トイレ別 / 浴室1坪以上 / 追焚機能浴室 / 浴室乾燥機 / 浴室2ヶ所 / シャワー / トイレ3ヶ所 / 温水洗浄便座 / タンクレストイレ / 男女トイレ別 / 洗面台 / 洗面所独立 / 2階洗面台 / 洗面所にドア / 洗面化粧台 / ユニットバス / 冷房 / 暖炉 / 薪ストーブ / クロゼット / シューズボックス / 玄関収納 / 納戸 / 階段下収納 / ディンプルキー / 火災警報器(報知器) / 平坦地 / オーシャンビュー / 海が近い / 海まで2Km以内 / 整備された歩道 / 眺望良好 / 通風良好 / オーナーチェンジ / スキップフロア / 住戸内覧可能 / 賃貸併用住宅 / リゾート向け / リノベーション / 内装リフォーム済 / 外装リフォーム済 / 内外装リフォーム済 / 壁紙貼替済 / リフォーム / 土地60坪以上
- 備考
- くらしの不動産(株)八百万/香川県三豊市詫間町詫間889-1/TEL0875-23-7907/香川県知事免許(1)第4684号/更新日2026年1月31日/次回更新予定日2026年2月28日
物件提供元
くらしの不動産
【創業100年の喜田グループ】 暮らし方の提案をする「DEMI1/2」に併設し、不動産業務を行う「くらしの不動産」。 地域密着で不動産探しはもちろん、地元優良工務店様のご紹介や空間デザインのご提案、インテリア、ゲストハウス運営、暮らしに関するあらゆるお悩みをご相談下さい。 //////////////株式会社喜田建材 関連事業リンク////////////// 【ショールーム DEMI1/2】 https://www.demi-kitaken.com/ 【ゲストハウス 泊まれるショールーム 泊Rutto】 https://rutto.jp// 【酒蔵リノベーション 三豊鶴】 https://mitoyotsuru.com/














